
Project: J-Garage
Project size: 300 SQ.M. (Aprox.)
Project type: Architecture and Interior
Location: Bangkok
Client: un-disclosable



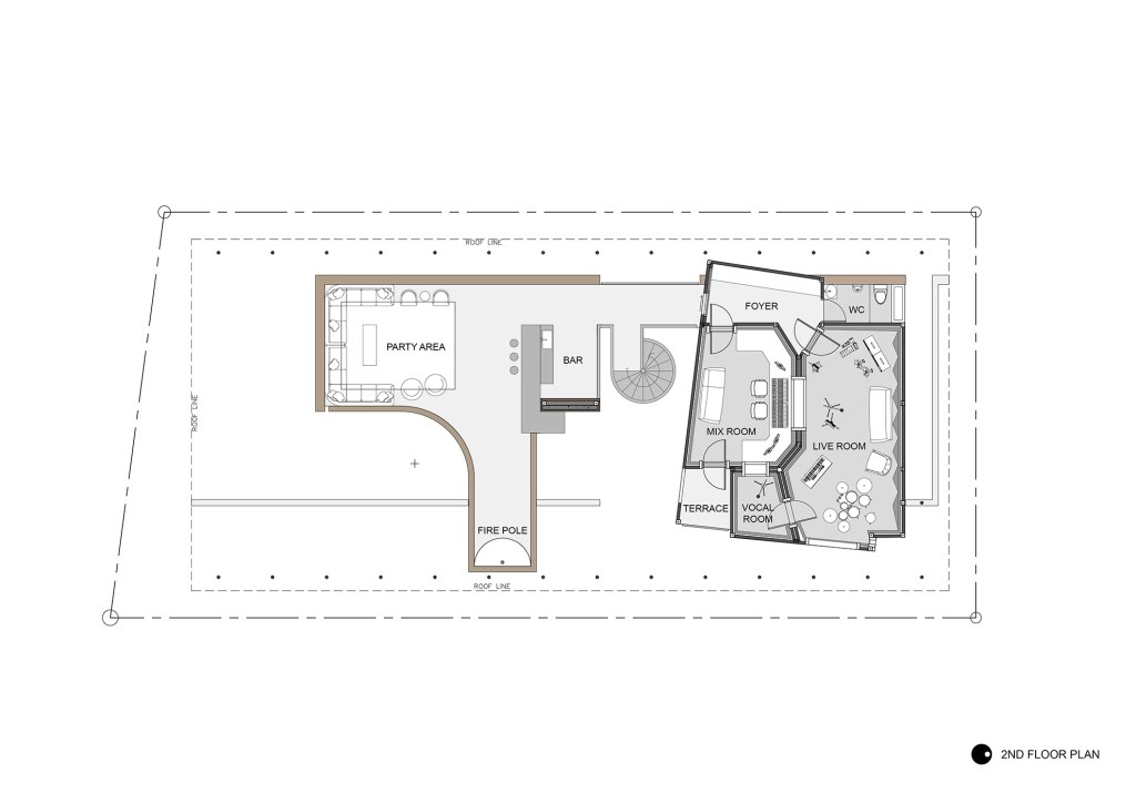
The 300 SQ.M. living garage is a house for our client’s hobbies. It should accommodate spaces for a collection of his motorbikes and exotic cars as well as a small private recording studio and some corners to party with his friends. And all should be done in relatively low budget.


Our design of the garage is combination of simple geometries criss-crossing on each other and covered by a single simplistic tilt roof. The overlapping masses create different kind of open and semi open space in the project, ie; a pool, a party balcony or cliff climbing space. The 2 main high-light spaces are his motorbilke and car garage where we propose a large glass doors and aDark Knight style, fully illuminated ceiling. On second floor are space for a record room and a naturally ventilated party balcony.







Leave a Reply